Elected Officials
Courts
Departments
Initiatives
Open Government
About
Login / Register
Home
/
Property & Tax Records
/
Property Records
/
Property & Tax Search
/
Parcel Profile
/
Sketches
Search for Another Parcel
Parcel Profile
Historical Card
Sketches
Photos
Tax Map
Taxes
Print View
Address: 1219 LAKE ST
Parcel: 28004004000700
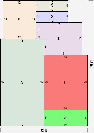
Parcel Sketches
Residential Card 1
A
MAIN
512 square feet
B
OFP OPEN FRAME PORCH
168 square feet
C
WDDCK WOOD DECKS
48 square feet
D
EFP ENCL FRAME PORCH
48 square feet
E
1S FR ONE STORY FRAME
186 square feet
F
UNFIN BSMT BASEMENT UNFINISHED 1S FR ONE STORY FRAME AT UN ATTIC-UNFINISHED
320 square feet
G
EFP ENCL FRAME PORCH
96 square feet