Elected Officials
Courts
Departments
Initiatives
Open Government
About
Login / Register
Home
/
Property & Tax Records
/
Property Records
/
Property & Tax Search
/
Parcel Profile
/
Sketches
Search for Another Parcel
Parcel Profile
Historical Card
Sketches
Photos
Tax Map
Taxes
Print View
Address: 10289 HALL AVE
Parcel: 28009010000300
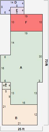
Parcel Sketches
Residential Card 1
A
MAIN
874 square feet
B
OFP OPEN FRAME PORCH
297 square feet
C
EFP ENCL FRAME PORCH
20 square feet
D
WDDCK WOOD DECKS
80 square feet
E
EFP ENCL FRAME PORCH
32 square feet
F
1S FR ONE STORY FRAME
190 square feet