Elected Officials
Courts
Departments
Initiatives
Open Government
About
Login / Register
Home
/
Property & Tax Records
/
Property Records
/
Property & Tax Search
/
Parcel Profile
/
Sketches
Search for Another Parcel
Parcel Profile
Historical Card
Sketches
Photos
Tax Map
Taxes
Print View
Address: 10247 HALL AVE
Parcel: 28009010000500
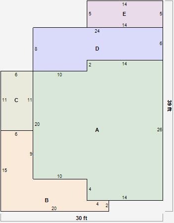
Parcel Sketches
Residential Card 1
A
MAIN
564 square feet
B
EFP ENCL FRAME PORCH
158 square feet
C
1S FR ONE STORY FRAME
66 square feet
D
UNFIN BSMT BASEMENT UNFINISHED 1S FR ONE STORY FRAME
164 square feet
E
EFP ENCL FRAME PORCH
70 square feet