Elected Officials
Courts
Departments
Initiatives
Open Government
About
Login / Register
Home
/
Property & Tax Records
/
Property Records
/
Property & Tax Search
/
Parcel Profile
/
Sketches
Search for Another Parcel
Parcel Profile
Historical Card
Sketches
Photos
Tax Map
Taxes
Print View
Address: 10144 HALL AVE
Parcel: 28009014001000
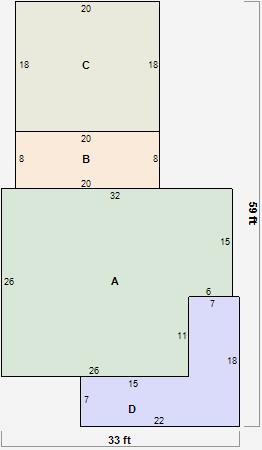
Parcel Sketches
Residential Card 1
A
MAIN
766 square feet
B
1S FR ONE STORY FRAME
160 square feet
C
FR GR FRAME GARAGE
360 square feet
D
OFP OPEN FRAME PORCH
231 square feet