Elected Officials
Courts
Departments
Initiatives
Open Government
About
Login / Register
Home
/
Property & Tax Records
/
Property Records
/
Property & Tax Search
/
Parcel Profile
/
Sketches
Search for Another Parcel
Parcel Profile
Historical Card
Sketches
Photos
Tax Map
Taxes
Print View
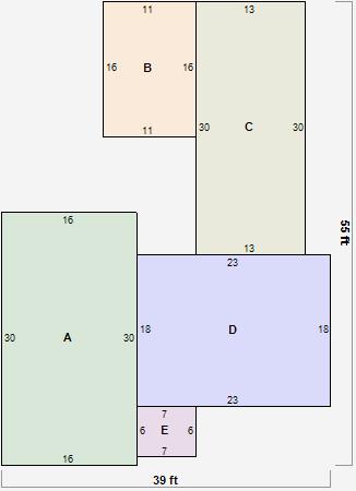
Address: 1755 LAKE ST
Parcel: 28010004002600
Parcel Sketches
Residential Card 1
A
MAIN
480 square feet
B
EFP ENCL FRAME PORCH
176 square feet
C
1S FR ONE STORY FRAME
390 square feet
D
UNFIN BSMT BASEMENT UNFINISHED 1S FR ONE STORY FRAME AT UN ATTIC-UNFINISHED
414 square feet
E
EFP ENCL FRAME PORCH
42 square feet