Elected Officials
Courts
Departments
Initiatives
Open Government
About
Login / Register
Home
/
Property & Tax Records
/
Property Records
/
Property & Tax Search
/
Parcel Profile
/
Sketches
Search for Another Parcel
Parcel Profile
Historical Card
Sketches
Photos
Tax Map
Taxes
Print View
Address: 9994 SMITH ST
Parcel: 28010004004600
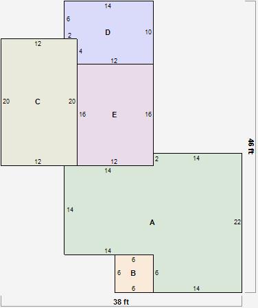
Parcel Sketches
Residential Card 1
A
MAIN
504 square feet
B
OFP OPEN FRAME PORCH
36 square feet
C
1S FR ONE STORY FRAME
240 square feet
D
WDDCK WOOD DECKS
132 square feet
E
1S FR ONE STORY FRAME
192 square feet