Elected Officials
Courts
Departments
Initiatives
Open Government
About
Login / Register
Home
/
Property & Tax Records
/
Property Records
/
Property & Tax Search
/
Parcel Profile
/
Sketches
Search for Another Parcel
Parcel Profile
Historical Card
Sketches
Photos
Tax Map
Taxes
Print View
Address: 9946 SMITH ST
Parcel: 28010004005600
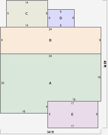
Parcel Sketches
Residential Card 1
A
MAIN
608 square feet
B
UNFIN BSMT BASEMENT UNFINISHED 1S FR ONE STORY FRAME
306 square feet
C
MA_PT CONC/MAS PATIO CANPY CANOPY
126 square feet
D
OFP OPEN FRAME PORCH
54 square feet
E
OFP OPEN FRAME PORCH
153 square feet