Elected Officials
Courts
Departments
Initiatives
Open Government
About
Login / Register
Home
/
Property & Tax Records
/
Property Records
/
Property & Tax Search
/
Parcel Profile
/
Sketches
Search for Another Parcel
Parcel Profile
Historical Card
Sketches
Photos
Tax Map
Taxes
Print View
Address: 10066 SAMPSON AVE
Parcel: 28013025001500
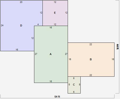
Parcel Sketches
Residential Card 1
A
MAIN
432 square feet
B
1S FR ONE STORY FRAME AT FN ATTIC-FINISHED
352 square feet
C
MA STOOP/TERR MAS STOOP
48 square feet
D
FR GR FRAME GARAGE
432 square feet
E
EFP ENCL FRAME PORCH
144 square feet