Address: 2260 ELK ST   Parcel: 28014031001100

Parcel Sketches


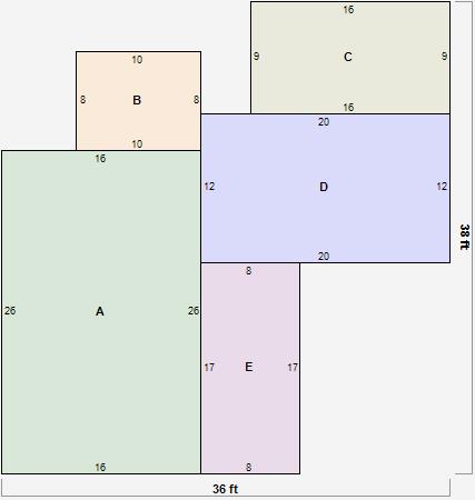
Residential Card 1

Residential Card 1
AMAIN416 square feet
BUNFIN BSMT BASEMENT UNFINISHED 1S FR ONE STORY FRAME 80 square feet
C EFP ENCL FRAME PORCH 144 square feet
DUNFIN BSMT BASEMENT UNFINISHED 1S FR ONE STORY FRAME 240 square feet
EUNFIN BSMT BASEMENT UNFINISHED EFP ENCL FRAME PORCH 136 square feet