Elected Officials
Courts
Departments
Initiatives
Open Government
About
Login / Register
Home
/
Property & Tax Records
/
Property Records
/
Property & Tax Search
/
Parcel Profile
/
Sketches
Search for Another Parcel
Parcel Profile
Historical Card
Sketches
Photos
Tax Map
Taxes
Print View
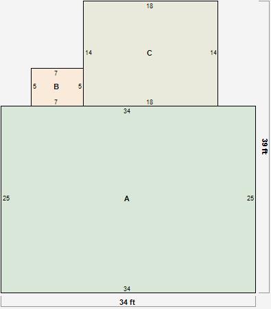
Address: 443 LAKE CLIFF DR
Parcel: 29006009002900
Parcel Sketches
Residential Card 1
A
MAIN
850 square feet
B
EFP ENCL FRAME PORCH
35 square feet
C
MA_PT CONC/MAS PATIO
252 square feet