Elected Officials
Courts
Departments
Initiatives
Open Government
About
Login / Register
Home
/
Property & Tax Records
/
Property Records
/
Property & Tax Search
/
Parcel Profile
/
Sketches
Search for Another Parcel
Parcel Profile
Historical Card
Sketches
Photos
Tax Map
Taxes
Print View
Address: 834 SILLIMAN AVE
Parcel: 29010046000500
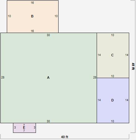
Parcel Sketches
Residential Card 1
A
MAIN
840 square feet
B
1S FR ONE STORY FRAME
160 square feet
C
OMP OPEN MASONRY PORCH
140 square feet
D
EMP ENCL MASONRY PORCH
140 square feet
E
MA STOOP/TERR MAS STOOP
21 square feet