Elected Officials
Courts
Departments
Initiatives
Open Government
About
Login / Register
Home
/
Property & Tax Records
/
Property Records
/
Property & Tax Search
/
Parcel Profile
/
Sketches
Search for Another Parcel
Parcel Profile
Historical Card
Sketches
Photos
Tax Map
Taxes
Print View
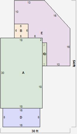
Address: 4124 IROQUOIS AVE
Parcel: 29011039000800
Parcel Sketches
Residential Card 1
A
MAIN
560 square feet
B
EFP ENCL FRAME PORCH
36 square feet
C
1SMAS MASONRY
20 square feet
D
OFP OPEN FRAME PORCH
128 square feet
E
WDDCK WOOD DECKS
406 square feet