Elected Officials
Courts
Departments
Initiatives
Open Government
About
Login / Register
Home
/
Property & Tax Records
/
Property Records
/
Property & Tax Search
/
Parcel Profile
/
Sketches
Search for Another Parcel
Parcel Profile
Historical Card
Sketches
Photos
Tax Map
Taxes
Print View
Address: 4106 IROQUOIS AVE
Parcel: 29011039001500
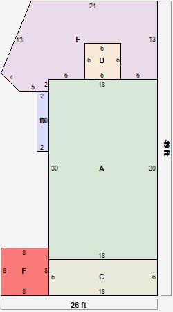
Parcel Sketches
Residential Card 1
A
MAIN
540 square feet
B
EFP ENCL FRAME PORCH
36 square feet
C
OFP OPEN FRAME PORCH
108 square feet
D
1SMAS MASONRY
20 square feet
E
WDDCK WOOD DECKS
284 square feet
F
OFP OPEN FRAME PORCH
64 square feet