Elected Officials
Courts
Departments
Initiatives
Open Government
About
Login / Register
Home
/
Property & Tax Records
/
Property Records
/
Property & Tax Search
/
Parcel Profile
/
Sketches
Search for Another Parcel
Parcel Profile
Historical Card
Sketches
Photos
Tax Map
Taxes
Print View
Address: 3903 E LAKE RD
Parcel: 29012021000100
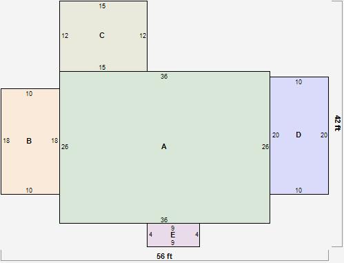
Parcel Sketches
Residential Card 1
A
MAIN
936 square feet
B
1SMAS MASONRY
180 square feet
C
WDDCK WOOD DECKS
180 square feet
D
1SMAS MASONRY
200 square feet
E
OFP OPEN FRAME PORCH
36 square feet