Elected Officials
Courts
Departments
Initiatives
Open Government
About
Login / Register
Home
/
Property & Tax Records
/
Property Records
/
Property & Tax Search
/
Parcel Profile
/
Sketches
Search for Another Parcel
Parcel Profile
Historical Card
Sketches
Photos
Tax Map
Taxes
Print View
Address: 536 SILLIMAN AVE
Parcel: 29012022000800
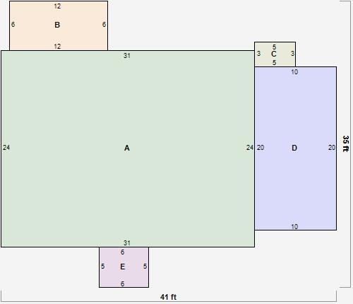
Parcel Sketches
Residential Card 1
A
MAIN
744 square feet
B
1S FR ONE STORY FRAME 1S FR ONE STORY FRAME
72 square feet
C
MA STOOP/TERR MAS STOOP
15 square feet
D
1S FR ONE STORY FRAME
200 square feet
E
OFP OPEN FRAME PORCH
30 square feet