Elected Officials
Courts
Departments
Initiatives
Open Government
About
Login / Register
Home
/
Property & Tax Records
/
Property Records
/
Property & Tax Search
/
Parcel Profile
/
Sketches
Search for Another Parcel
Parcel Profile
Historical Card
Sketches
Photos
Tax Map
Taxes
Print View
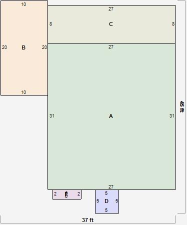
Address: 508 SMITHSON AVE
Parcel: 29012023000400
Parcel Sketches
Residential Card 1
A
MAIN
837 square feet
B
FR GR FRAME GARAGE
200 square feet
C
OFP OPEN FRAME PORCH
216 square feet
D
MA STOOP/TERR MAS STOOP
25 square feet
E
FROVR FRAME OVERHANG
12 square feet