Elected Officials
Courts
Departments
Initiatives
Open Government
About
Login / Register
Home
/
Property & Tax Records
/
Property Records
/
Property & Tax Search
/
Parcel Profile
/
Sketches
Search for Another Parcel
Parcel Profile
Historical Card
Sketches
Photos
Tax Map
Taxes
Print View
Address: 4106 EMMET DR
Parcel: 29012023001600
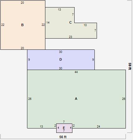
Parcel Sketches
Residential Card 1
A
MAIN
1130 square feet
B
FR GR FRAME GARAGE
440 square feet
C
MA_PT CONC/MAS PATIO
252 square feet
D
EFP ENCL FRAME PORCH
270 square feet
E
OMP OPEN MASONRY PORCH
28 square feet