Elected Officials
Courts
Departments
Initiatives
Open Government
About
Login / Register
Home
/
Property & Tax Records
/
Property Records
/
Property & Tax Search
/
Parcel Profile
/
Sketches
Search for Another Parcel
Parcel Profile
Historical Card
Sketches
Photos
Tax Map
Taxes
Print View
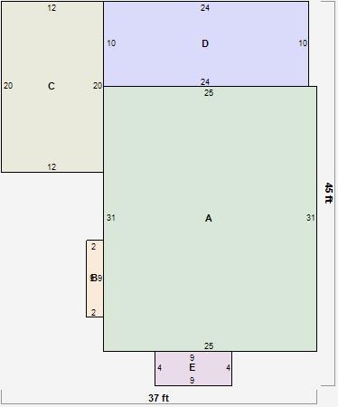
Address: 507 SILLIMAN AVE
Parcel: 29012023002200
Parcel Sketches
Residential Card 1
A
MAIN
775 square feet
B
FROVR FRAME OVERHANG
18 square feet
C
FR GR FRAME GARAGE
240 square feet
D
WDDCK WOOD DECKS
240 square feet
E
1S FR ONE STORY FRAME
36 square feet