Elected Officials
Courts
Departments
Initiatives
Open Government
About
Login / Register
Home
/
Property & Tax Records
/
Property Records
/
Property & Tax Search
/
Parcel Profile
/
Sketches
Search for Another Parcel
Parcel Profile
Historical Card
Sketches
Photos
Tax Map
Taxes
Print View
Address: 4123 NIAGARA PL
Parcel: 29012030000600
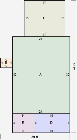
Parcel Sketches
Residential Card 1
A
MAIN
768 square feet
B
OFP OPEN FRAME PORCH
20 square feet
C
1S FR ONE STORY FRAME
255 square feet
D
UNFIN BSMT BASEMENT UNFINISHED 1S FR ONE STORY FRAME
120 square feet
E
EFP ENCL FRAME PORCH
72 square feet