Elected Officials
Courts
Departments
Initiatives
Open Government
About
Login / Register
Home
/
Property & Tax Records
/
Property Records
/
Property & Tax Search
/
Parcel Profile
/
Sketches
Search for Another Parcel
Parcel Profile
Historical Card
Sketches
Photos
Tax Map
Taxes
Print View
Address: 640 RANKINE AVE
Parcel: 29012032000600
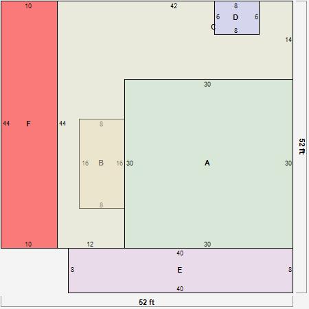
Parcel Sketches
Residential Card 1
A
MAIN
900 square feet
B
1S FR ONE STORY FRAME
128 square feet
C
1S FR ONE STORY FRAME
948 square feet
D
OFP OPEN FRAME PORCH
48 square feet
E
OFP OPEN FRAME PORCH
320 square feet
F
WDDCK WOOD DECKS
440 square feet