Elected Officials
Courts
Departments
Initiatives
Open Government
About
Login / Register
Home
/
Property & Tax Records
/
Property Records
/
Property & Tax Search
/
Parcel Profile
/
Sketches
Search for Another Parcel
Parcel Profile
Historical Card
Sketches
Photos
Tax Map
Taxes
Print View
Address: 1022 SMITHSON AVE
Parcel: 29015060003100
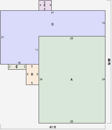
Parcel Sketches
Residential Card 1
A
MAIN
884 square feet
B
WDDCK WOOD DECKS
40 square feet
C
FRBAY FRAME BAY FRBAY FRAME BAY
14 square feet
D
UNFIN BSMT BASEMENT UNFINISHED 1S FR ONE STORY FRAME 1S FR ONE STORY FRAME
575 square feet
E
WDDCK WOOD DECKS
20 square feet