Elected Officials
Courts
Departments
Initiatives
Open Government
About
Login / Register
Home
/
Property & Tax Records
/
Property Records
/
Property & Tax Search
/
Parcel Profile
/
Sketches
Search for Another Parcel
Parcel Profile
Historical Card
Sketches
Photos
Tax Map
Taxes
Print View
Address: 12927 PLANK RD
Parcel: 30001002000200
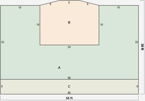
Parcel Sketches
Residential Card 1
A
MAIN
720 square feet
B
1S FR ONE STORY FRAME
344 square feet
C
FR GR FRAME GARAGE
300 square feet
D
1S FR ONE STORY FRAME 1S FR ONE STORY FRAME
234 square feet
Residential Card 2
A
MAIN
1296 square feet
B
UNFIN BSMT BASEMENT UNFINISHED 1S FR ONE STORY FRAME
416 square feet
C
OFP OPEN FRAME PORCH
336 square feet
D
1S FR ONE STORY FRAME
-324 square feet