Elected Officials
Courts
Departments
Initiatives
Open Government
About
Login / Register
Home
/
Property & Tax Records
/
Property Records
/
Property & Tax Search
/
Parcel Profile
/
Sketches
Search for Another Parcel
Parcel Profile
Historical Card
Sketches
Photos
Tax Map
Taxes
Print View
Address: 13031 MCGAHEN HILL RD
Parcel: 30001003003300
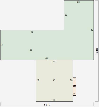
Parcel Sketches
Residential Card 1
A
MAIN
1660 square feet
B
FRBAY FRAME BAY
24 square feet
C
UNFIN BSMT BASEMENT UNFINISHED 1S FR ONE STORY FRAME
700 square feet