Elected Officials
Courts
Departments
Initiatives
Open Government
About
Login / Register
Home
/
Property & Tax Records
/
Property Records
/
Property & Tax Search
/
Parcel Profile
/
Sketches
Search for Another Parcel
Parcel Profile
Historical Card
Sketches
Photos
Tax Map
Taxes
Print View
Address: 13010 OLD PLANK RD
Parcel: 30001060000200
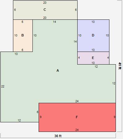
Parcel Sketches
Residential Card 1
A
MAIN
740 square feet
B
OFP OPEN FRAME PORCH
60 square feet
C
OFP OPEN FRAME PORCH
120 square feet
D
1S FR ONE STORY FRAME
100 square feet
E
EFP ENCL FRAME PORCH
40 square feet
F
EFP ENCL FRAME PORCH
216 square feet