Elected Officials
Courts
Departments
Initiatives
Open Government
About
Login / Register
Home
/
Property & Tax Records
/
Property Records
/
Property & Tax Search
/
Parcel Profile
/
Sketches
Search for Another Parcel
Parcel Profile
Historical Card
Sketches
Photos
Tax Map
Taxes
Print View
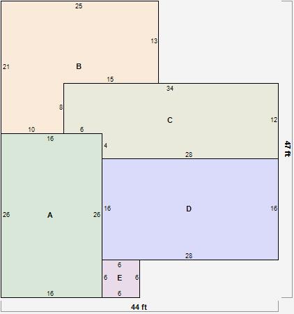
Address: 663 MCGAHEN HILL RD
Parcel: 30013059000600
Parcel Sketches
Residential Card 1
A
MAIN
416 square feet
B
MA_PT CONC/MAS PATIO
405 square feet
C
1S FR ONE STORY FRAME
384 square feet
D
UNFIN BSMT BASEMENT UNFINISHED 1S FR ONE STORY FRAME AT UN ATTIC-UNFINISHED
448 square feet
E
OFP OPEN FRAME PORCH
36 square feet