Elected Officials
Courts
Departments
Initiatives
Open Government
About
Login / Register
Home
/
Property & Tax Records
/
Property Records
/
Property & Tax Search
/
Parcel Profile
/
Sketches
Search for Another Parcel
Parcel Profile
Historical Card
Sketches
Photos
Tax Map
Taxes
Print View
Address: 15290 SMITH RD
Parcel: 30019082000800
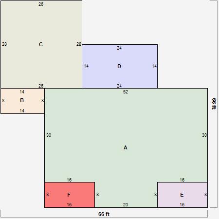
Parcel Sketches
Residential Card 1
A
MAIN
1720 square feet
B
OFP OPEN FRAME PORCH
112 square feet
C
FR GR FRAME GARAGE
728 square feet
D
OFP OPEN FRAME PORCH
336 square feet
E
OFP OPEN FRAME PORCH
128 square feet
F
OFP OPEN FRAME PORCH
128 square feet