Elected Officials
Courts
Departments
Initiatives
Open Government
About
Login / Register
Home
/
Property & Tax Records
/
Property Records
/
Property & Tax Search
/
Parcel Profile
/
Sketches
Search for Another Parcel
Parcel Profile
Historical Card
Sketches
Photos
Tax Map
Taxes
Print View
Address: 6700 OLD MEADVILLE RD
Parcel: 30022091001200
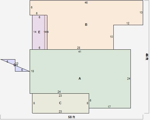
Parcel Sketches
Residential Card 1
A
MAIN
840 square feet
B
1S FR ONE STORY FRAME
716 square feet
C
1S FR ONE STORY FRAME
184 square feet
D
FR UT FRAME UTILITY BUILDING
30 square feet
E
EFP ENCL FRAME PORCH
84 square feet
Residential Card 2
A
MAIN
612 square feet
B
FR UT FRAME UTILITY BUILDING
216 square feet
C
OFP OPEN FRAME PORCH
128 square feet