Elected Officials
Courts
Departments
Initiatives
Open Government
About
Login / Register
Home
/
Property & Tax Records
/
Property Records
/
Property & Tax Search
/
Parcel Profile
/
Sketches
Search for Another Parcel
Parcel Profile
Historical Card
Sketches
Photos
Tax Map
Taxes
Print View
Address: 6103 STERRETTANIA RD
Parcel: 31001002000700
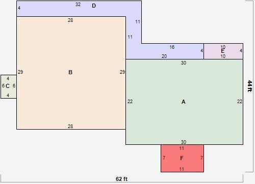
Parcel Sketches
Residential Card 1
A
MAIN
660 square feet
B
1S FR ONE STORY FRAME AT FN ATTIC-FINISHED
812 square feet
C
WDDCK WOOD DECKS
24 square feet
D
OFP OPEN FRAME PORCH
236 square feet
E
FR UT FRAME UTILITY BUILDING
40 square feet
F
MA_PT CONC/MAS PATIO
77 square feet