Elected Officials
Courts
Departments
Initiatives
Open Government
About
Login / Register
Home
/
Property & Tax Records
/
Property Records
/
Property & Tax Search
/
Parcel Profile
/
Sketches
Search for Another Parcel
Parcel Profile
Historical Card
Sketches
Photos
Tax Map
Taxes
Print View
Address: 8110 MILLFAIR RD
Parcel: 31001020000601
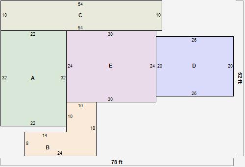
Parcel Sketches
Residential Card 1
A
MAIN
704 square feet
B
OFP OPEN FRAME PORCH
292 square feet
C
OFP OPEN FRAME PORCH
540 square feet
D
FR GR FRAME GARAGE
520 square feet
E
UNFIN BSMT BASEMENT UNFINISHED 1S FR ONE STORY FRAME
720 square feet