Elected Officials
Courts
Departments
Initiatives
Open Government
About
Login / Register
Home
/
Property & Tax Records
/
Property Records
/
Property & Tax Search
/
Parcel Profile
/
Sketches
Search for Another Parcel
Parcel Profile
Historical Card
Sketches
Photos
Tax Map
Taxes
Print View
Address: 6430 WEST ROAD
Parcel: 31011022001900
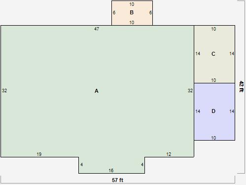
Parcel Sketches
Residential Card 1
A
MAIN
1568 square feet
B
OFP OPEN FRAME PORCH
60 square feet
C
MA_PT CONC/MAS PATIO
140 square feet
D
1S FR ONE STORY FRAME
140 square feet
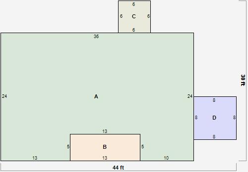
Residential Card 2
A
MAIN
799 square feet
B
OFP OPEN FRAME PORCH
65 square feet
C
WDDCK WOOD DECKS
36 square feet
D
EFP ENCL FRAME PORCH
64 square feet