Elected Officials
Courts
Departments
Initiatives
Open Government
About
Login / Register
Home
/
Property & Tax Records
/
Property Records
/
Property & Tax Search
/
Parcel Profile
/
Sketches
Search for Another Parcel
Parcel Profile
Historical Card
Sketches
Photos
Tax Map
Taxes
Print View
Address: 2693 GREENLEE RD
Parcel: 31015059000501
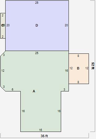
Parcel Sketches
Residential Card 1
A
MAIN
684 square feet
B
OFP OPEN FRAME PORCH
96 square feet
C
FRBAY FRAME BAY
20 square feet
D
1S FR ONE STORY FRAME 1S FR ONE STORY FRAME
500 square feet