Elected Officials
Courts
Departments
Initiatives
Open Government
About
Login / Register
Home
/
Property & Tax Records
/
Property Records
/
Property & Tax Search
/
Parcel Profile
/
Sketches
Search for Another Parcel
Parcel Profile
Historical Card
Sketches
Photos
Tax Map
Taxes
Print View
Address: 3651 S HILL RD
Parcel: 31018069000300
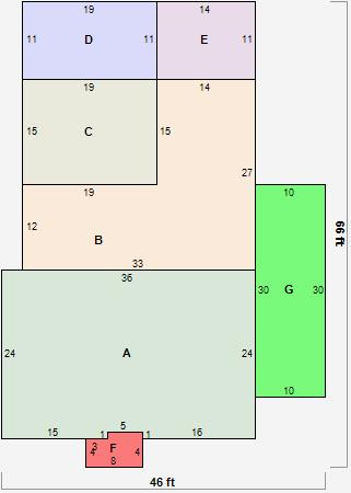
Parcel Sketches
Residential Card 1
A
MAIN
859 square feet
B
1S FR ONE STORY FRAME 1S FR ONE STORY FRAME
606 square feet
C
EFP ENCL FRAME PORCH
285 square feet
D
WDDCK WOOD DECKS
209 square feet
E
FR UT FRAME UTILITY BUILDING
154 square feet
F
MA STOOP/TERR MAS STOOP
37 square feet
G
OFP OPEN FRAME PORCH
300 square feet