Elected Officials
Courts
Departments
Initiatives
Open Government
About
Login / Register
Home
/
Property & Tax Records
/
Property Records
/
Property & Tax Search
/
Parcel Profile
/
Sketches
Search for Another Parcel
Parcel Profile
Historical Card
Sketches
Photos
Tax Map
Taxes
Print View
Address: 5278 STANCLIFF RD
Parcel: 31020057003800
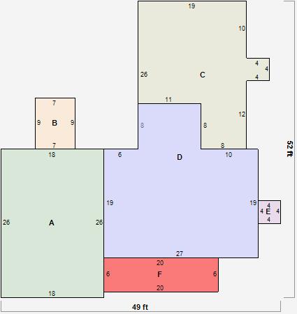
Parcel Sketches
Residential Card 1
A
MAIN
468 square feet
B
EFP ENCL FRAME PORCH
63 square feet
C
EFP ENCL FRAME PORCH
422 square feet
D
1S FR ONE STORY FRAME
601 square feet
E
EFP ENCL FRAME PORCH
16 square feet
F
OFP OPEN FRAME PORCH
120 square feet