Elected Officials
Courts
Departments
Initiatives
Open Government
About
Login / Register
Home
/
Property & Tax Records
/
Property Records
/
Property & Tax Search
/
Parcel Profile
/
Sketches
Search for Another Parcel
Parcel Profile
Historical Card
Sketches
Photos
Tax Map
Taxes
Print View
Address: 5345 W STANCLIFF RD
Parcel: 31021072000500
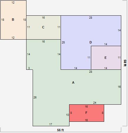
Parcel Sketches
Residential Card 1
A
MAIN
1050 square feet
B
WDDCK WOOD DECKS
216 square feet
C
UNFIN BSMT BASEMENT UNFINISHED 1S FR ONE STORY FRAME
176 square feet
D
1S FR ONE STORY FRAME
546 square feet
E
EFP ENCL FRAME PORCH
154 square feet
F
OFP OPEN FRAME PORCH
128 square feet