Elected Officials
Courts
Departments
Initiatives
Open Government
About
Login / Register
Home
/
Property & Tax Records
/
Property Records
/
Property & Tax Search
/
Parcel Profile
/
Sketches
Search for Another Parcel
Parcel Profile
Historical Card
Sketches
Photos
Tax Map
Taxes
Print View
Address: 4901 EAST AVE
Parcel: 32006006001100
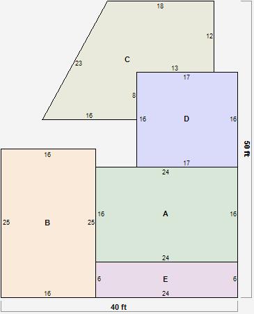
Parcel Sketches
Residential Card 1
A
MAIN
384 square feet
B
1S FR ONE STORY FRAME 1S FR ONE STORY FRAME
400 square feet
C
WDDCK WOOD DECKS
366 square feet
D
1S FR ONE STORY FRAME
272 square feet
E
OFP OPEN FRAME PORCH
144 square feet