Address: 3773 LAKE FRONT DR   Parcel: 33005019000200

Parcel Sketches


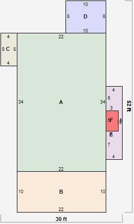
Residential Card 1

Residential Card 1
AMAIN748 square feet
B OFP OPEN FRAME PORCH 220 square feet
C FR UT FRAME UTILITY BUILDING 32 square feet
D FR UT FRAME UTILITY BUILDING 80 square feet
E 1S FR ONE STORY FRAME 57 square feet
F 1S FR ONE STORY FRAME 1/2FR FRAME HALF-STORY 15 square feet