Elected Officials
Courts
Departments
Initiatives
Open Government
About
Login / Register
Home
/
Property & Tax Records
/
Property Records
/
Property & Tax Search
/
Parcel Profile
/
Sketches
Search for Another Parcel
Parcel Profile
Historical Card
Sketches
Photos
Tax Map
Taxes
Print View
Address: 329 BEACHGROVE DR
Parcel: 33006019007900
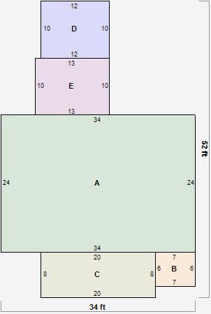
Parcel Sketches
Residential Card 1
A
MAIN
816 square feet
B
OFP OPEN FRAME PORCH
42 square feet
C
EFP ENCL FRAME PORCH AT FN ATTIC-FINISHED
160 square feet
D
WDDCK WOOD DECKS
120 square feet
E
1S FR ONE STORY FRAME
130 square feet