Elected Officials
Courts
Departments
Initiatives
Open Government
About
Login / Register
Home
/
Property & Tax Records
/
Property Records
/
Property & Tax Search
/
Parcel Profile
/
Sketches
Search for Another Parcel
Parcel Profile
Historical Card
Sketches
Photos
Tax Map
Taxes
Print View
Address: 334 CLIFTON DR
Parcel: 33006019008100
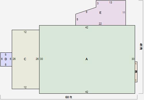
Parcel Sketches
Residential Card 1
A
MAIN
1260 square feet
B
FRBAY FRAME BAY
9 square feet
C
1SMAS MASONRY
312 square feet
D
MA STOOP/TERR MAS STOOP
30 square feet
E
WDDCK WOOD DECKS
202 square feet