Elected Officials
Courts
Departments
Initiatives
Open Government
About
Login / Register
Home
/
Property & Tax Records
/
Property Records
/
Property & Tax Search
/
Parcel Profile
/
Sketches
Search for Another Parcel
Parcel Profile
Historical Card
Sketches
Photos
Tax Map
Taxes
Print View
Address: 420 BLACKSTONE DR
Parcel: 33006021000400
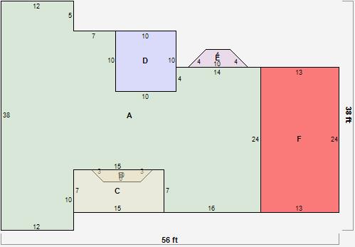
Parcel Sketches
Residential Card 1
A
MAIN
1097 square feet
B
FRBAY FRAME BAY
16 square feet
C
OFP OPEN FRAME PORCH
105 square feet
D
MA_PT CONC/MAS PATIO
100 square feet
E
FRBAY FRAME BAY
21 square feet
F
CARPT CARPORT
312 square feet