Elected Officials
Courts
Departments
Initiatives
Open Government
About
Login / Register
Home
/
Property & Tax Records
/
Property Records
/
Property & Tax Search
/
Parcel Profile
/
Sketches
Search for Another Parcel
Parcel Profile
Historical Card
Sketches
Photos
Tax Map
Taxes
Print View
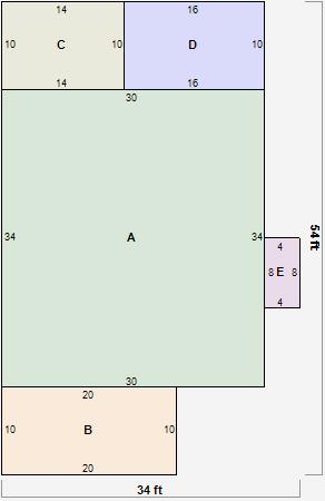
Address: 3631 WILLOW RD
Parcel: 33006022000300
Parcel Sketches
Residential Card 1
A
MAIN
1020 square feet
B
FR GR FRAME GARAGE
200 square feet
C
1S FR ONE STORY FRAME
140 square feet
D
EFP ENCL FRAME PORCH
160 square feet
E
OFP OPEN FRAME PORCH
32 square feet