Elected Officials
Courts
Departments
Initiatives
Open Government
About
Login / Register
Home
/
Property & Tax Records
/
Property Records
/
Property & Tax Search
/
Parcel Profile
/
Sketches
Search for Another Parcel
Parcel Profile
Historical Card
Sketches
Photos
Tax Map
Taxes
Print View
Address: 438 BEACHGROVE DR
Parcel: 33006023000800
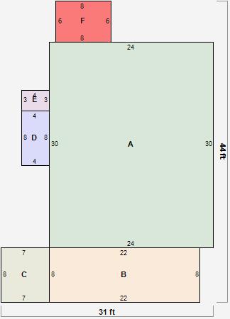
Parcel Sketches
Residential Card 1
A
MAIN
720 square feet
B
UNFIN BSMT BASEMENT UNFINISHED 1S FR ONE STORY FRAME
176 square feet
C
OFP OPEN FRAME PORCH
56 square feet
D
1S FR ONE STORY FRAME 1S FR ONE STORY FRAME 1S FR ONE STORY FRAME
32 square feet
E
EFP ENCL FRAME PORCH
12 square feet
F
OFP OPEN FRAME PORCH
48 square feet