Elected Officials
Courts
Departments
Initiatives
Open Government
About
Login / Register
Home
/
Property & Tax Records
/
Property Records
/
Property & Tax Search
/
Parcel Profile
/
Sketches
Search for Another Parcel
Parcel Profile
Historical Card
Sketches
Photos
Tax Map
Taxes
Print View
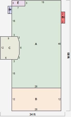
Address: 237 CLIFTON DR
Parcel: 33006027002200
Parcel Sketches
Residential Card 1
A
MAIN
1130 square feet
B
EFP ENCL FRAME PORCH
312 square feet
C
OFP OPEN FRAME PORCH
117 square feet
D
FRBAY FRAME BAY
8 square feet
E
EFP ENCL FRAME PORCH
21 square feet
F
FRBAY FRAME BAY
12 square feet