Elected Officials
Courts
Departments
Initiatives
Open Government
About
Login / Register
Home
/
Property & Tax Records
/
Property Records
/
Property & Tax Search
/
Parcel Profile
/
Sketches
Search for Another Parcel
Parcel Profile
Historical Card
Sketches
Photos
Tax Map
Taxes
Print View
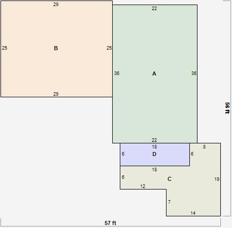
Address: 620 STRATHMORE AVE
Parcel: 33018015000900
Parcel Sketches
Residential Card 1
A
MAIN
792 square feet
B
FR GR FRAME GARAGE 1/2FR FRAME HALF-STORY
725 square feet
C
WDDCK WOOD DECKS
302 square feet
D
EFP ENCL FRAME PORCH
108 square feet