Elected Officials
Courts
Departments
Initiatives
Open Government
About
Login / Register
Home
/
Property & Tax Records
/
Property Records
/
Property & Tax Search
/
Parcel Profile
/
Sketches
Search for Another Parcel
Parcel Profile
Historical Card
Sketches
Photos
Tax Map
Taxes
Print View
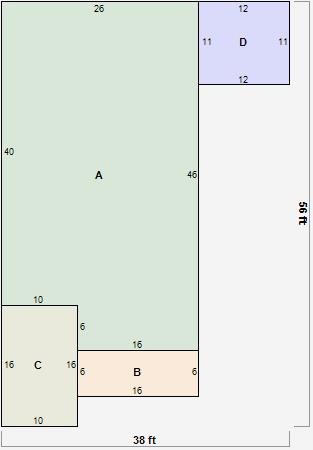
Address: 927 POTOMAC AVE
Parcel: 33018082002200
Parcel Sketches
Residential Card 1
A
MAIN
1136 square feet
B
MA_PT CONC/MAS PATIO
96 square feet
C
1S FR ONE STORY FRAME
160 square feet
D
EFP ENCL FRAME PORCH
132 square feet