Elected Officials
Courts
Departments
Initiatives
Open Government
About
Login / Register
Home
/
Property & Tax Records
/
Property Records
/
Property & Tax Search
/
Parcel Profile
/
Sketches
Search for Another Parcel
Parcel Profile
Historical Card
Sketches
Photos
Tax Map
Taxes
Print View
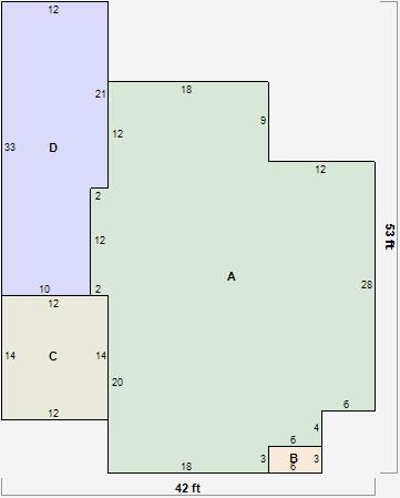
Address: 3915 W LAKE RD
Parcel: 33018092000100
Parcel Sketches
Residential Card 1
A
MAIN
1176 square feet
B
OFP OPEN FRAME PORCH
18 square feet
C
1S FR ONE STORY FRAME
168 square feet
D
WDDCK WOOD DECKS
372 square feet