Elected Officials
Courts
Departments
Initiatives
Open Government
About
Login / Register
Home
/
Property & Tax Records
/
Property Records
/
Property & Tax Search
/
Parcel Profile
/
Sketches
Search for Another Parcel
Parcel Profile
Historical Card
Sketches
Photos
Tax Map
Taxes
Print View
Address: 901 ARDMORE AVE
Parcel: 33018092001800
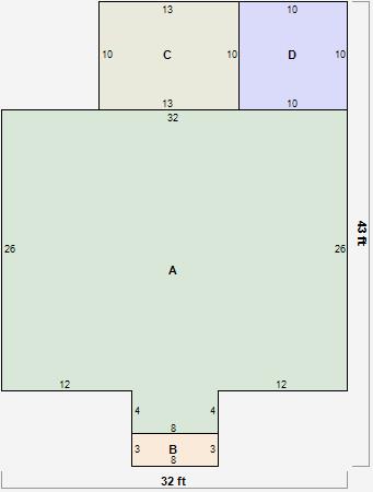
Parcel Sketches
Residential Card 1
A
MAIN
864 square feet
B
MA STOOP/TERR MAS STOOP
24 square feet
C
MA_PT CONC/MAS PATIO
130 square feet
D
1S FR ONE STORY FRAME
100 square feet