Address: 4258 W LAKE RD   Parcel: 33019001007300

Parcel Sketches


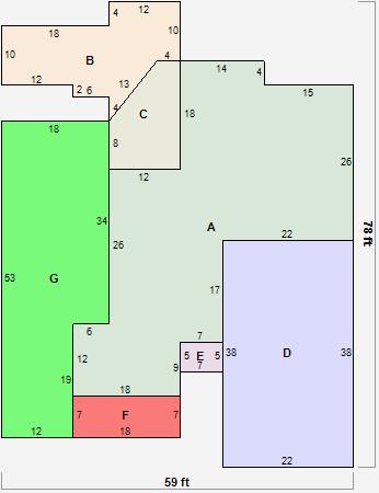
Residential Card 1

Residential Card 1
AMAIN1457 square feet
B ST_PT STONE OR TILE PATIO 352 square feet
C WDDCK WOOD DECKS 176 square feet
D FR GR FRAME GARAGE PART ATTIC FINISHED 836 square feet
E OFP OPEN FRAME PORCH 35 square feet
F OFP OPEN FRAME PORCH 126 square feet
GUNFIN BSMT BASEMENT UNFINISHED 1S FR ONE STORY FRAME 840 square feet