Elected Officials
Courts
Departments
Initiatives
Open Government
About
Login / Register
Home
/
Property & Tax Records
/
Property Records
/
Property & Tax Search
/
Parcel Profile
/
Sketches
Search for Another Parcel
Parcel Profile
Historical Card
Sketches
Photos
Tax Map
Taxes
Print View
Address: 1031 33 GRACE ST
Parcel: 33020107000400
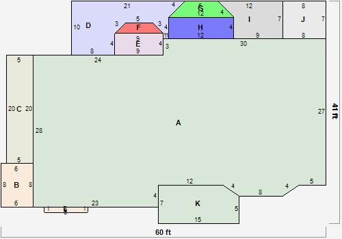
Parcel Sketches
Residential Card 1
A
MAIN
1500 square feet
B
OFP OPEN FRAME PORCH
48 square feet
C
1S FR ONE STORY FRAME
100 square feet
D
OFP OPEN FRAME PORCH
132 square feet
E
1S FR ONE STORY FRAME
36 square feet
F
FRBAY FRAME BAY
14 square feet
G
FRBAY FRAME BAY
27 square feet
H
1S FR ONE STORY FRAME
48 square feet
I
OFP OPEN FRAME PORCH
68 square feet
J
1S FR ONE STORY FRAME
56 square feet
K
MA_PT CONC/MAS PATIO
102 square feet
L
MABAY MASONRY BAY
8 square feet