Elected Officials
Courts
Departments
Initiatives
Open Government
About
Login / Register
Home
/
Property & Tax Records
/
Property Records
/
Property & Tax Search
/
Parcel Profile
/
Sketches
Search for Another Parcel
Parcel Profile
Historical Card
Sketches
Photos
Tax Map
Taxes
Print View
Address: 4602 W LAKE RD
Parcel: 33025115000400
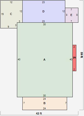
Parcel Sketches
Residential Card 1
A
MAIN
1200 square feet
B
OFP OPEN FRAME PORCH
168 square feet
C
WDDCK WOOD DECKS
171 square feet
D
EFP ENCL FRAME PORCH
276 square feet
E
WDDCK WOOD DECKS
56 square feet
F
FROVR FRAME OVERHANG
28 square feet
Residential Card 2
A
MAIN
420 square feet
B
WDDCK WOOD DECKS
45 square feet