Elected Officials
Courts
Departments
Initiatives
Open Government
About
Login / Register
Home
/
Property & Tax Records
/
Property Records
/
Property & Tax Search
/
Parcel Profile
/
Sketches
Search for Another Parcel
Parcel Profile
Historical Card
Sketches
Photos
Tax Map
Taxes
Print View
Address: 4642 W LAKE RD
Parcel: 33025115001400
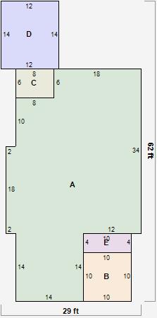
Parcel Sketches
Residential Card 1
A
MAIN
1068 square feet
B
MA STOOP/TERR MAS STOOP
100 square feet
C
EFP ENCL FRAME PORCH
48 square feet
D
WDDCK WOOD DECKS
168 square feet
E
EFP ENCL FRAME PORCH
40 square feet